Plans to Develop New York Country Club
Denser Housing Planned Than Zoning Allows
In December 2008, Alan Gestetner entered a contract to buy a subdivided 9.28 acre parcel of the 160 acre New York Country Club golf course owned by New York Golf Enterprises (NYGE)1.
After the contract was brought before the Rockland County Court2, and subsequently the Appellate Court3, the contract was found to not be enforceable4.
However, a new deal was struck, and the property was ultimately bought by Union Village LLC, owned and operated by Berel Karniol, which was closed on December 29. 20235.
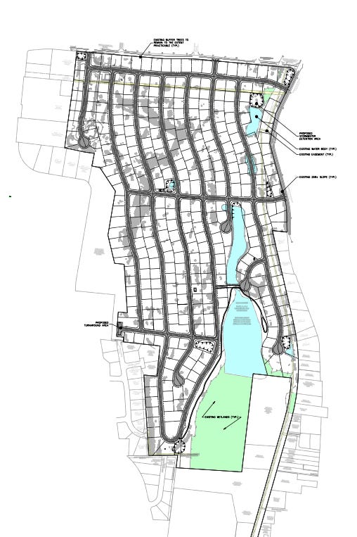
The plan for development was presented at the New Hempstead Village Hall meeting on March 12, 2024, which originally included a re-zoning to R-10, which would allow for 344 single family homes on the property.
The Original Proposed Plan as Submitted to the Village of New Hempstead:
For the Property Here, Viewed Through Google Maps:
As of March 12, 2024, the 9.23 Acre Plan has not yet been posted on the New Hempstead Village website.
Legal representation for Union Village stated that most people are retired at 55 years old, and therefore most of the people living within the planned community will be retired. Social Security in US defines full retirement at 67 years old, and the age for Medicare eligibility remains at 656. The average age of retirement in the US is 647.
Union Village representation further stated that the intended population of aged 55+ drive significantly less. Surveys show that older adults 65+ travel extensively and rely on personal vehicles as heavily as their younger counterparts8. Later studies show that there is a considerable drop off of automobile use at age 759. The planned community is for ages 55+. This implies a 20 year gap in order for the Union Villaige representation’s claim to become relevant or accurate.
https://monseyscoop.com/landmark-real-estate-deal-concludes-in-new-hempstead-new-york-golf-club-parcel-sold-for-4-million-after-15-year-dispute/
https://trellis.law/doc/47834822/order-motion-long-form-entered-in-office-county-clerk-on-june-08-2016
https://caselaw.findlaw.com/court/ny-supreme-court/2200083.html
https://www.nycourts.gov/courts/AD2/Handdowns/2023/Decisions/D71524.pdf
https://rcbizjournal.com/2024/01/17/the-legal-beat-a-fifteen-year-property-dispute-ends-with-a-sale-of-nine-plus-acres-in-new-hempstead/
https://faq.ssa.gov/en-us/Topic/article/KA-01885
https://www.bls.gov/opub/mlr/1992/07/art3full.pdf
https://www.sciencedirect.com/science/article/abs/pii/S0022437503000574
https://www.sciencedirect.com/science/article/abs/pii/S0966692313001701



